analuisamartinez8@gmail.com +34 696 400 080
Been doing
Ana Luisa Arquitectura
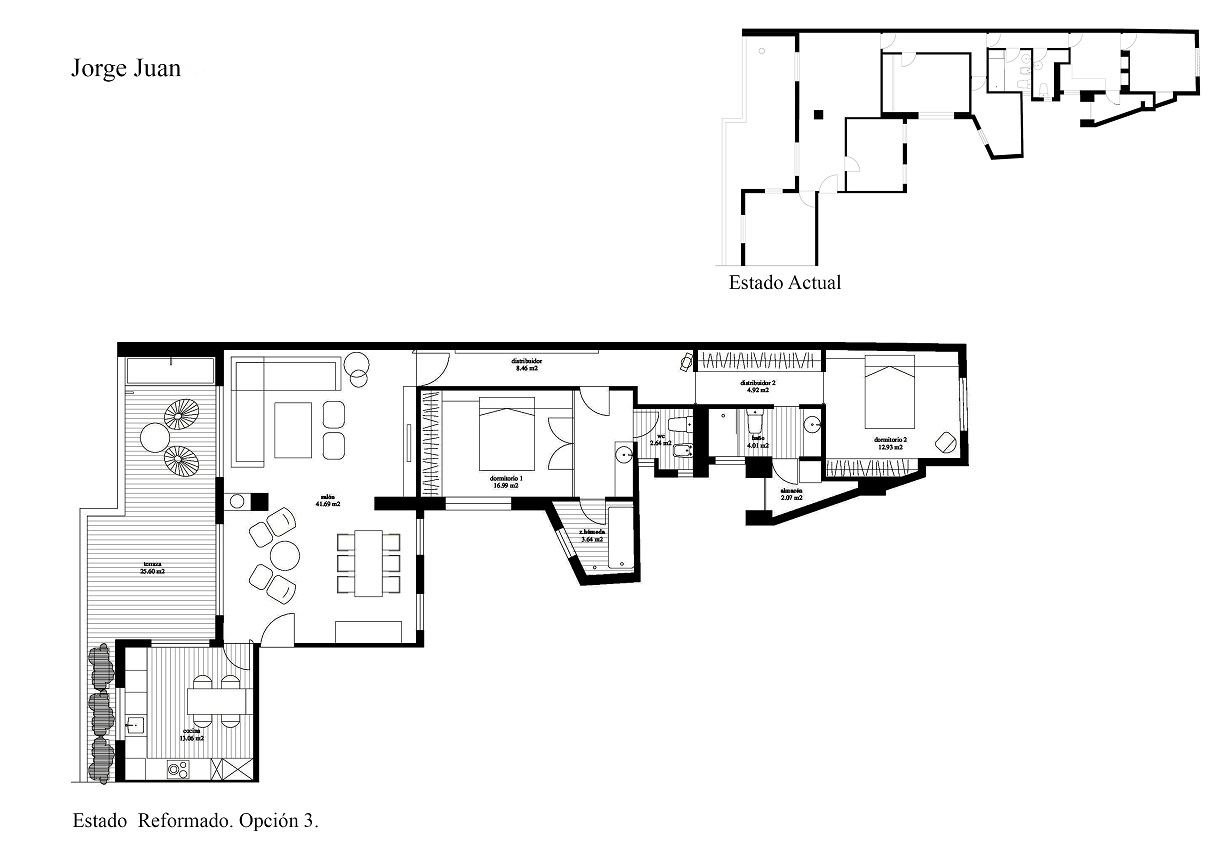
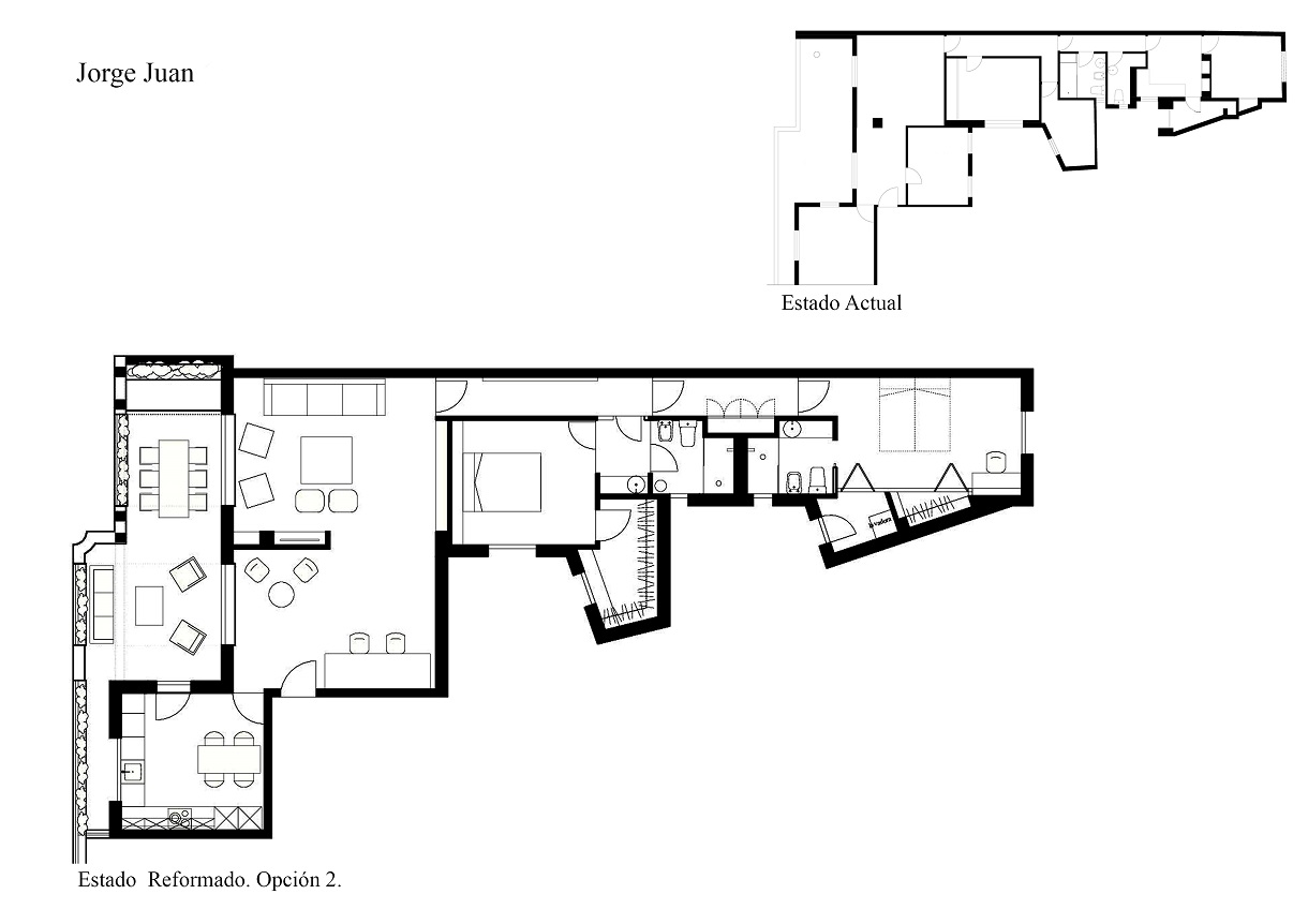
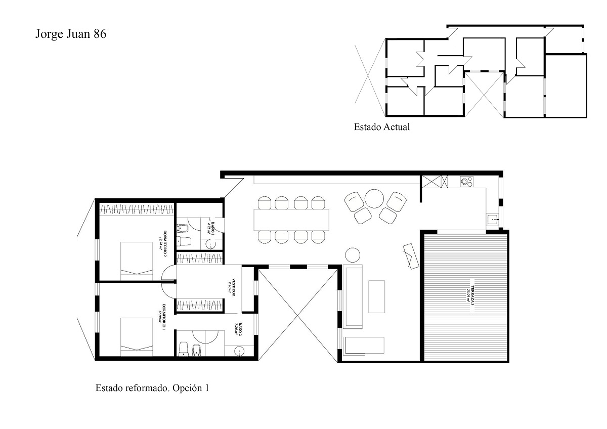
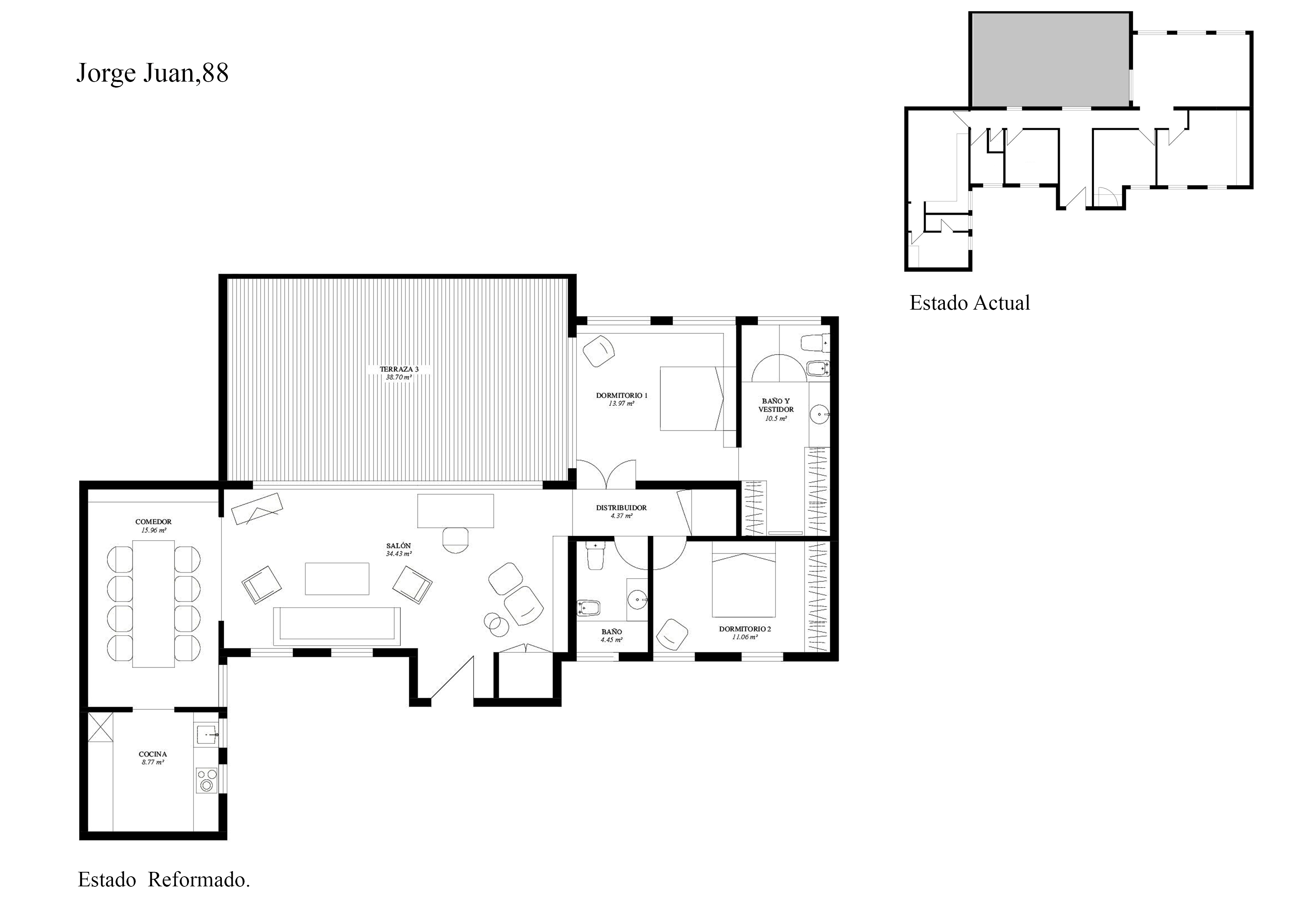
PROPUESTAS DE REFORMAS Varios pisos.