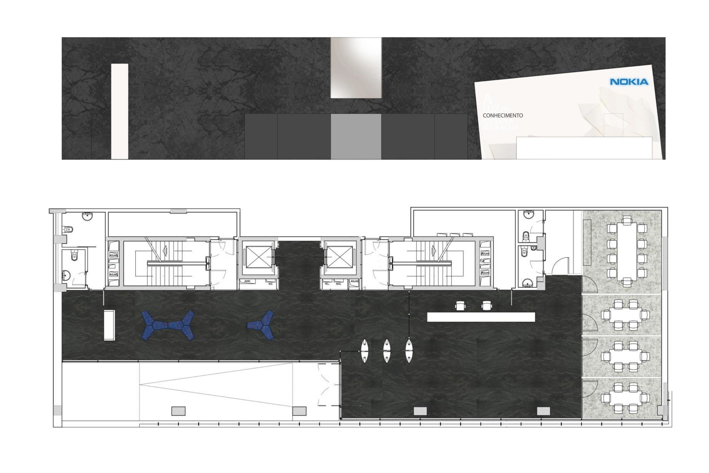
OFICINAS NOKIA EN LISBOA
Empresa: AECOM

Diciembre 2016. Se trata de la implantación de las oficinas de una conocida marca de telefonía en un edificio de Lisboa. Es importante la disposición de los espacios según el concepto actual de oficinas. El look and feel satisface el carácter innovador del sector de la tecnología y la tradición de una ciudad con la potencia de Lisboa.