LONJA EN ESSAOUIRA.
Proyecto Fin de Carrera.

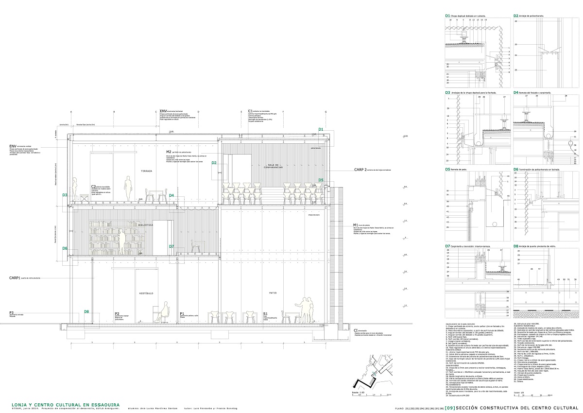
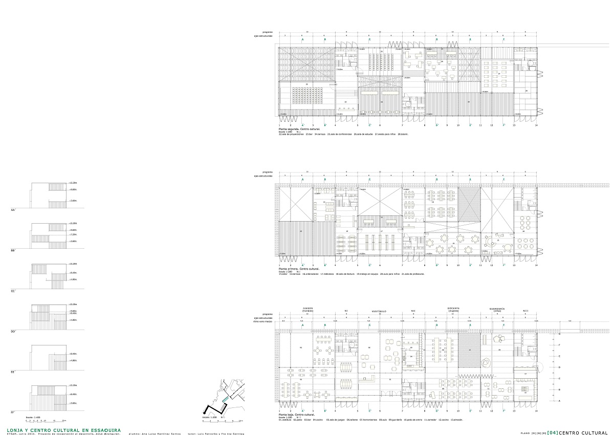
ETSAM 2013/2014. Tutor: Luis Pancorbo. El proyecto se ubica en Essaouira, Marruecos. Desarrolla desde una escala lejana un parque como espacio continuo entre la medina, la ciudad nueva y el puerto, que pretende esclarecer la estructura y la historia de esta ciudad en tres partes. En una escala más cercana desarrollo dos piezas: lonja y centro cultural, ligadas respectivamente al puerto y a la medina a través de la prolongación de sus correspondientes murallas formando una nueva puerta perteneciente al eje de puertas existente a lo largo de la medina, lo que engancha definitivamente el proyecto con la ciudad existente.