PROPUESTAS DE REFORMAS
Varios pisos.

FUNDACIÓN ESTHER KOPLOWITZ
Estudio: Hans Abaton

Marzo 2016. El proyecto es la primera fase de la ampliación de un centro para niños con parálisis cerebral. El objetivo es conseguir estancias comunes espaciosas y luminosas donde las actividades y cuidados a los niños se desarrollen de manera óptima. Los dormitorios toman la forma de casita con cubierta a dos aguas propia de ese barrio. Este proyecto ha sido publicado en numerosas webs de arquitectura: www.frameweb.com, www.archdaily.com, www.plataformaarquitectura.cl, architizer.com, www.metalocus.es

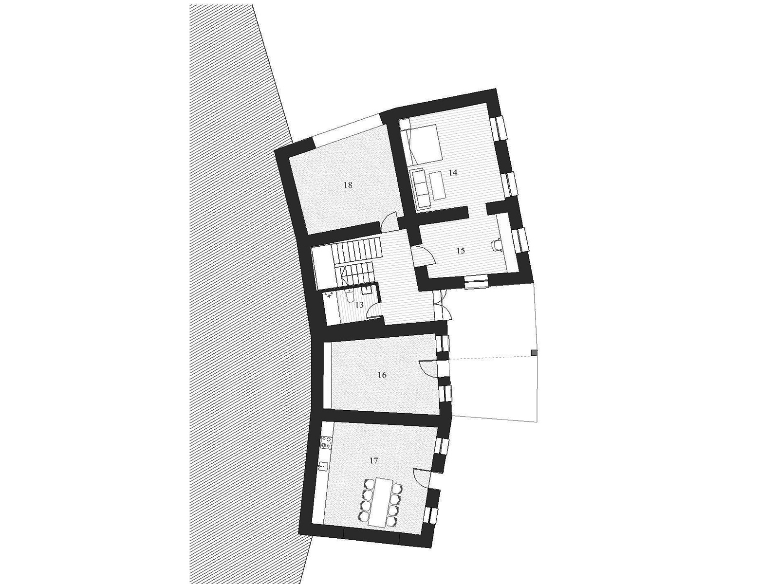
OFICINAS KF
Estudio: Hans Abaton

Febrero 2016. A través de una distribución orgánica, conseguimos sacar 6 salas de reuniones y un espacio continuo donde se producen el resto de actividades: recepción, espera, proyecciones, bar…

CASA TORIEZO
Vivienda unifamiliar en Asturias.

Julio 2016. En un prado asturiano, debíamos unir tres casas contiguas para hacer una vivienda unifamiliar cómoda, contemporánea y fuertemente ligada con el paisaje y la arquitectura tradicional del lugar. Redefinimos los huecos en fachada que enmarcarían las vistas, y demolimos algunos muros existentes para hacer una nueva distribución. La cimentación tuvo que ser reforzada a través de una pantalla de pilotes.

EL PATIO DE MI CASA
Restauración casa en Villamañán.

Junio 2015. El objetivo era dotar a una casa muy antigua ubicada en León de una infraestructura que la hiciera más cómoda y vividera. La intervención se centró en tres bloques: calefacción y carpinterías nuevas para que la casa fuera habitable en invierno; reestructuración y paisajismo del patio donde disfrutar del verano; y reinterpretación de la crujía que da al patio, no originaria de la casa, como galería acristalada que se utilizará como despacho en el primer piso.

APARTAMENTO EN LA BOLA
Reforma y Amueblamiento

Marzo 2016. Se trata de una bohardilla con mucho encanto pero absolutamente deteriorada. El cliente no quería cambiar la distribución de la casa y me pidió hacer un proyecto barato de interiorismo con el objetivo de revalorizar el inmueble para alquilarlo.

LONJA EN ESSAOUIRA.
Proyecto Fin de Carrera.

ETSAM 2013/2014. Tutor: Luis Pancorbo. El proyecto se ubica en Essaouira, Marruecos. Desarrolla desde una escala lejana un parque como espacio continuo entre la medina, la ciudad nueva y el puerto, que pretende esclarecer la estructura y la historia de esta ciudad en tres partes. En una escala más cercana desarrollo dos piezas: lonja y centro cultural, ligadas respectivamente al puerto y a la medina a través de la prolongación de sus correspondientes murallas formando una nueva puerta perteneciente al eje de puertas existente a lo largo de la medina, lo que engancha definitivamente el proyecto con la ciudad existente.

BÓVEDA TARDOGÓTICA
Especialidad en Restauración y Patrimonio

Profesores: Enrique Rabasa y Jose Carlos Palacios. Primavera 2013.

VILLABLINO
Especialidad en Restauración y Patrimonio
Otoño 2012 Profesor: Pepe Gallegos. El ejercicio consiste en reconvertir las instalaciones de una explotación minera en un centro de recuperación del paisaje. Se propone establecer un corte vertical en el terreno dejando dos niveles: en el nivel superior, en continuidad con la ladera que viene desde el pueblo están los cultivos y los invernaderos – se mantiene la estructura de las naves existentes y se envuelve con una piel de policarbonato: tectónico – en el nivel inferior, un paseo orientado al sur da acceso a las aulas, residencia y zonas de estudio, semienterrados: estereotómico.

ACADEMIX
Proyectos ETSAM

2007-2012 Son algunos documentos de las asignaturas de Proyectos cursadas en la Escuela Técnica Superior de Arquitectura de Madrid.