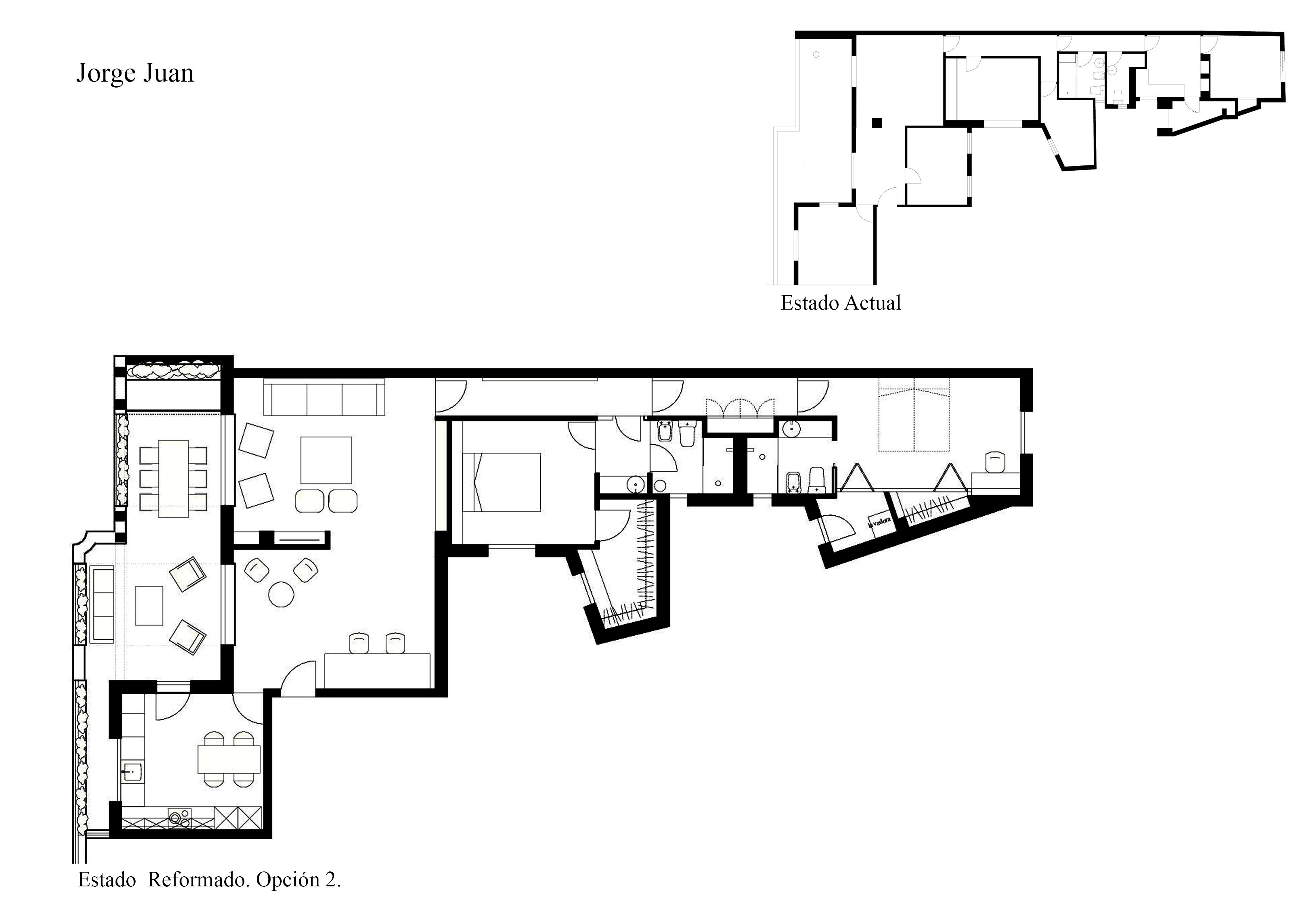
Anterior ÁTICO EN JORGE JUAN Reforma y amueblamiento Mayo 2017. Reforma integral de un ático luminoso y con mucho encanto para adaptarlo a las necesidades del nuevo propietario: espacios amplios y dos habitaciones completas. Siguiente